Consolidación del terreno en vivienda aislada sobre terreno arcilloso
LUGAR: Begues (Barcelona)
AÑO: 2024
DURACIÓN: 1,5 días
ZONA TRATADA: 21 ml de zapata corrida de cimentación
AÑO: 2024
DURACIÓN: 1,5 días
ZONA TRATADA: 21 ml de zapata corrida de cimentación
EL PROBLEMA
La necesidad de mejora del terreno bajo 3 de los muros de carga de la vivienda, debido a la presencia de patologías derivadas de la presencia de un terreno arcilloso con potencial expansivo.
LA SOLUCIÓN
Consolidación del terreno de cimentación con inyecciones de resina expansiva Uretek Geoplus® - Tecnologías Uretek Deep Injections® en 2 metros de profundidad.
La intervención de consolidación se llevó a cabo inyectando la resina Uretek Geoplus en el terreno de apoyo de los muros de carga afectados, en hasta 2 metros de profundidad por debajo de la cimentación existente (3,4 m de profundidad respecto rasante).
La necesidad de realizar los trabajos con maquinaría reducida, dado que los trabajos se realizaban en zonas de difícil acceso, con la problemática añadida de la necesidad de tratar parte del muro medianero de la vivienda, desde el interior de la misma.
Por qué se eligió la solución de Uretek:
- Rapidez: cuidadosa planificación y programación de los tiempos de ejecución que permitieron completar la obra en poco tiempo.
- Precios competitivos.
- Intervención mínimamente invasiva: la intervención propuesta por Uretek no requirió excavaciones ni trabajos de albañilería, sin ensuciar el área, ni produciendo residuos.
- Monitorización con láser de alta precisión: tanto durante como después de la intervención, las actividades estuvieron sujetas a control en tiempo real mediante tecnología láser de última generación y personal altamente cualificado.
- Aplicación de la exclusiva tecnología Uretek Deep Injections® que, gracias a la inyección de la resina expansiva Uretek Geoplus® a alta presión de hinchamiento, compacta el terreno y estabiliza las estructuras.
- Respeto al medio ambiente: la mezcla de las resinas Uretek® genera un producto final inerte, que no libera eluatos al suelo ni a los acuíferos presentes.
LA SOLUCIÓN
Para solucionar el problema se optó por una tecnología cuyas características son la poca invasividad y la rapidez de ejecución: Uretek Deep Injections®.
El resultado de la intervención se ha verificado a través de monitorización láser durante las inyecciones, así como con la ejecución de ensayos de penetración dinámica, tanto antes como después de la intervención (evidencia de la mejora de la capacidad portante del terreno tratado).
Fueron tratados un total de 21 ml de muro de cimentación.
Les avantages
de la consolidation de sols Uretek
Les injections de résines Uretek agissent de manière quasi instantanée et leur forte expansion dans le sol comprime le terrain en freinant l'évolution des tassements et en renforçant les fondations.
Intervention
rapide
Solution
peu invasive
Grande
flexibilité
Efficacité
immédiate
Lorem ipsum dolor sit amet, consectetur adipiscing
DES clients satisfaits !
Les principales causes d'un affaissement de terrain
Les tassements différentiels des sols de fondation peuvent être causés par divers facteurs généralement non identifiables. Voici les 6 causes les plus fréquentes :
Desecación de las capas superficiales del terreno o diferencias en la composición del suelo sobre el que descansa su casa.
Terrenos con pendientes pronunciadas o cargas pesadas cerca de la cimentación.
Exceso de agua por escorrentía o rotura de tuberías.
Excavaciones en una zona cercana al edificio.
Sótanos a diferentes niveles de profundidad.
Vibraciones o licuefacciones provocadas por movimientos sísmicos.
Les étapes d'intervention d'Uretek
01
1. Visite et devis gratuit
À partir des éléments observés lors de la visite, notamment l'état des fissures et les rapports géotechniques, l'ingénieur d'affaires confirme notre capacité à intervenir avant d'établir un devis en indiquant des modalités d'intervention.
02
2. Repérage réseaux
Avant l'intervention, il est primordial que nos équipes puissent identifier et repérer précisément les réseaux enterrés. Ces derniers sont alors localisés et marqués quelques jours avant nos travaux.
03
3. Arrivée sur le chantier
Arrivée du camion-atelier, entièrement autonome et équipé.
Il peut se garer à une distance maximale de 80 mètres de la zone d'intervention.
04
4. Forage
Des trous sont forés à la perceuse électrique manuelle (26 mm de diamètre) directement à travers les fondations afin d'atteindre la surface du sol à traiter.
Dans la mesure du possible, les forages sont effectués à l'extérieur de la maison.
Sans démolition, vibrations ou poussière : vous n'avez pas besoin d'évacuer le bâtiment.
05
5. Insertion des tubes Multipoint
Les tubes d'injection sont introduits dans les trous préalablement percés à l'aide d'outils manuels à percussion rotative.
06
6. Injection de résines expansives
La résine expansive adaptée à votre chantier est injectée à l'aide d'un pistolet relié au camion-atelier par un tuyau spécial.
La quantité et la température de la résine, ainsi que les pressions d'injection, sont contrôlées à tout instant.
07
7. Suivi et contrôle
La résine injectée sous les fondations se répartit de façon homogène dans le sol.
En s'expansant dans le sol, elle compacte le terrain et redonne de la stabilité à la structure sus-jacente.
L’injection se poursuit jusqu’à ce qu’un léger mouvement de remontée du bâtiment soit détecté par niveau laser de haute précision, garantissant un contrôle total de l’intervention.
08
8. Vérification des résultats
Avant et après l’intervention, des tests pénétrométriques comparatifs sont effectués dans le sol pour mesurer sa résistance.
Ces contrôles permettent de confirmer que le terrain a bien été renforcé et qu’il supporte à nouveau correctement les fondations.
9
9. Finition des travaux
Une fois l'intervention terminée, la partie du tube dépassant du sol est sectionnée et l'orifice est rebouché avec un mortier de réparation approprié.
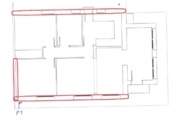
EL PROYECTO EN DETALLE

Esquema tipo de apoyo de los muros en el terreno
El tratamiento consistió en la mejora del terreno en 2 metros de profundidad bajo el apoyo del muro de cimentación de hasta 2 metros bajo la cimentación, con inyecciones separadas cada metro entre ellas.

Columna sondeo

Planta tratamiento

Resultado Ensayos Penetrométricos realizados en obra
QUI SOMMES-NOUS
Uretek est une entreprise spécialisée dans les solutions géotechniques intégrant l’utilisation de technologie innovantes et brevetées basées sur l’injection de résines. Elle intervient de manière rapide et conservatrice afin de stabiliser tous types de structures et d’infrastructures, pour consolider les sols, régénérer les maçonneries, combler les cavités, relever les dallages et les bâtiments, ancrer les murs contre terre et stopper les infiltrations.
Uretek Multipoint, un système d'injection breveté
Le système d'injection innovant et breveté Uretek Multipoint (brevet européen n° EP 3 821 079 B1) permet de traiter le sol de façon homogène, grâce à un maillage d'injection particulièrement dense et à l'emploi de canules d'injection prépercées sur toute leur longueur permettant ainsi de laisser la résine Geoplus se diffuser latéralement et simultanément dans le sol sur toute la hauteur du traitement.
Cette méthode d'injection garantit des résultats supérieurs de 30 % par rapport aux méthodes d'injection traditionnelles.
Ponte en contacto con nosotros
Solicita una inspección y presupuesto gratuito sin compromiso.
Estamos presentes con nuestras soluciones en toda España
Gracias a nuestras continuas inversiones en I+D, en Uretek hemos desarollado diversas soluciones con inyecciones de resinas.
6 soluciones patentadas y exclusivas, registradas desde 1990.
Consolidación del terreno de cimentación
Estabilización y elevación de pavimentos
Anclaje de muros de contención
Regeneración de muros
Relleno de cavidades subterráneas
Tratamiento de filtraciones en estructuras soterradas
Découvrez nos interventions
Lorem ipsum dolor sit amet, consectetur adipiscing elit, sed do eiusmod tempor incididunt ut labore et dolore magna aliqua.
Découvrez comment nous solutionnons les problèmes de fissures dans les murs
Consolidamento pavimentazione industriale dell'azienda Luymar
Luymar è un'azienda specializzata nella produzione di sistemi di climatizzazione...
Consolidamento pavimentazione industriale dell'azienda Luymar
Luymar è un'azienda specializzata nella produzione di sistemi di climatizzazione...
Consolidamento pavimentazione industriale dell'azienda Luymar
Luymar è un'azienda specializzata nella produzione di sistemi di climatizzazione...
Consolidamento pavimentazione industriale dell'azienda Luymar
Luymar è un'azienda specializzata nella produzione di sistemi di climatizzazione...
Devi effettuare un intervento nel tuo condominio?
Approfitta del bonus ristrutturazione!
Accessibilité
maintenue
Solution
peu invasive
Grande
Flexibilité
Efficacité
immédiate
Votre maison fissure après une sécheresse ?
Vérifiez si votre commune est classée en catastrophe naturelle
En cas de sécheresse, les variations de volume des sols argileux engendrent des affaissements et des fissures sur les constructions.
Lorsque l’État classe une commune en catastrophe naturelle, les sinistrés peuvent bénéficier d’une indemnisation par leur assurance multirisques habitation (MRH).