En este artículo se cuenta el procedimiento para realizar nuestras intervenciones para el relleno de una cavidad subterránea mediante el empleo de inyecciones de resinas.
Vamos a analizar en detalle nuestras intervenciones dirigidas a la consolidación estructural de la “cavidad”.
EXPLICACIÓN DE LA TECNOLOGÍA
La tecnología Uretek Cavity Filling® consiste en rellenar una cavidad subterránea (en este caso un forjado sanitario) a través de bombeo de arcilla expandida con granulometría controlada y sucesiva inyección de resina expansiva Uretek Geoplus® con elevada fuerza de expansión, con el objetivo de saturar el volumen interior, compactar los gránulos que constituyen el relleno y lograr un prefijado valor de precompresión en las paredes.
El relleno que produce la arcilla expandida evita que se produzcan derrumbes en la superficie, debidos a colapsos imprevistos de las paredes de la cavidad (evaluación del estado límite último), mientras la precompresión inducida por la resina expansiva evita que se verifiquen hundimientos de la superficie debidos a simples deformaciones de las paredes mismas (evaluación del estado límite de ejercicio). La acción combinada de los dos materiales permite la completa solución del problema.
La tecnología URETEK CAVITY FILLING® consiste en rellenar dicha cavidad mediante bombeo de arcilla expandida y a continuación dar una acción de precompresión en las paredes de la misma cavidad mediante inyección de resina expansiva Uretek Geoplus.
Permite que se restablezca la continuidad entre la cavidad rellenada y el terreno. Se mantiene estable en el tiempo el “contacto” entre grano y grano y entre grano y superficie y permite una distribución uniforme de las tensiones del terreno. No altera los flujos de agua en el terreno.
Se plantea una intervención accediendo a la cavidad, en un área de difícil acceso en superficie para maquinaria pesada. No produce vibraciones y no recarga excesivamente el terreno bajo la cavidad y por lo tanto no ejercita excesiva presión sobre las paredes de esta.
Admite intervenciones en el tiempo porque permite retirar el material de relleno.
FASES DE LA INTERVENCIÓN
La tecnología, se articula en dos fases distinguidas y consecutivas:
- Fase A: Bombeo de arcilla expandida
En esta fase se ha rellenado la cavidad subterránea de forma parcial con arcilla expandida con granulometria controlada, escogida para garantizar características mecánicas e hidráulicas adecuadas.
- Fase B: inyección de resina expansiva
La utilización combinada de arcilla expandida y resinas expansivas Uretek Geoplus®, garantiza el relleno total del forjado sanitario tratado, constatado con el inicio de levantamiento detectado en el interior de la edificación mediante el empleo de nivelación láser.
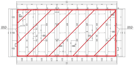
CASO DE ÉXITO: INTERVENCIÓN EN EL COLEGIO CEIP TOSCAL LONGUERA
El trazado planimétrico de la zona de intervención, en el forjado sanitario del CEIP Toscal Longuera, en Santa Cruz de Tenerife, se muestra en el siguiente diagrama (zona rayada en rojo).

Las fases de tratamiento fueron las siguientes:
- Suministro e instalación de 1.000 metros cúbicos de arcilla expandida tipo Leca ® de granulometria controlada.
- Inyecciones de resina expansiva en la parte alta de la cavidad, inmediatamente bajo el forjado que conforma el suelo de planta baja.

TRABAJOS PREPARATORIOS PARA LA EJECUCIÓN DE LA OBRA – A CARGO DEL CLIENTE
Para la ejecución de la intervención se requiere lo siguiente, que en todo caso es responsabilidad del Contratista principal:
- Verificación de los volúmenes de diseño a través de un levantamiento topográfico detallado.
- Detección de instlaciones subterráneas.
- Elaboración de un programa detallado de obras.
- Obtención de permisos de acceso y estacionamiento de vehículos en las inmediaciones de la obra.
- Adecuación de accesos al forjado sanitario según Pliego SyS de Proyecto (estimado un mínimo 4-6 huecos en una de las fachadas, de dimensiones mínimas estimadas de 80x80 cm cada hueco)
- Disponibilidad de suministro de agua para bombeo de la arcilla para evitar la generación de polvo.
DESCRIPCIÓN DE LA TECNOLOGÍA URETEK CAVITY FILLING®
Para la obra en cuestión, el llenado activo del forjado sanitario se planifica mediante un procedimiento que consiste en el bombeo de arcilla expandida tipo Leca® 3-8 y la posterior inyección de resina expansiva tipo Uretek Geoplus® con alta presión de hinchamiento, con el fin de saturar el volumen interno, compactar los granos que constituyen el relleno y permitir una acción de compresión sobre las paredes de la cavidad.
El relleno producido por la arcilla expandida es necesario para evitar el colapso de las paredes de la cavidad, mientras que la saturación del volumen con resina expansiva reduce las deformaciones de la solera (forjado suelo planta baja). La acción combinada de los dos materiales produce un relleno activo que garantiza la seguridad de la cavidad.
El rellenado generalmente se lleva a cabo en varias etapas:
- La primera fase consiste en la preparación de la cavidad con los accesos y/o aberturas adecuadas para el relleno y la posterior inyección de resina expansiva o la ejecución de perforaciones adecuadas para alcanzar el volumen a rellenar.
- La segunda fase consiste en bombear arcilla expandida con un tamaño de grano seleccionado desde el interior de la cavidad.
- La tercera fase consiste en la inyección de resina expansiva en la parte superior del forjado sanitario desde la planta baja, con el fin de completar el relleno y garantizar una acción de compresión radial sobre el intrados de las paredes de la cavidad.
La resina expansiva tipo Uretek Geoplus® debe contar con las siguientes características técnicas certificadas por laboratorios cualificados y reconocidos:
- Tiempos de polimerización entre 5 s (inicio de la reacción) y 40 s (final de la reacción)
- Presión máxima de expansión en condiciones edométricas de hasta 10,0 MPa
- Resistencia a la compresión vertical con expansión lateral libre entre 0,10 MPa y 6,00 MPa en el rango de peso de volumen de 0,40 kN/m³ a 3,50 kN/m³
- Módulo de elasticidad inicial determinado para una deformación axial del 1% entre 10,0 MPa y 85,0 MPa dentro de los rangos de peso volumétrico entre 0,50 kN/m³ y 3,30 kN/m³
- Resistencia a la tracción axial entre 0,50 MPa y 8,00 MPa en el rango de peso de volumen de 0,50 kN/m³ a 5,00 kN/m³
- Módulo resistente entre 20 MPa y 70 MPa en el rango de peso de volumen entre 1,0 kN/m³ y 2,1 kN/m³
- Deformación vertical resultante de la aplicación a largo plazo de una carga de compresión con expansión lateral libre entre 0,3% y 2,0% en el rango de solicitaciones de entre 0,15 MPa a 1,10 MPa
- La resistencia máxima a la tracción por flexión entre 0,10 kN y 1,20 kN dentro de los rangos de peso volumétrico entre 1,0 kN/m³ y 5,0 kN/m³
- Compatibilidad ambiental de acuerdo con los límites establecidos
- Estabilidad dimensional y de rendimiento a largo plazo (período de referencia 50 años).
Características de la arcilla
Leca cuenta con la certificación ANAB-ICEA para la construcción ecológica y el marcado CE de acuerdo con:
- UNE EN 13055 "Áridos ligeros"
- UNE EN 14063-1 "Aislamiento térmico para edificios - Productos de áridos ligeros de arcilla expandida realizados in situ - Parte 1: Especificaciones para productos a granel antes de la instalación".

INTERVENCIÓN DETALLADA POR FASES
Las fases operativas se resumen de la siguiente manera:
- Relleno del fondo de la cavidad
El fondo de la cavidad se rellena en capas, hasta que se alcanzan los niveles de la parte alta en los extremos de la propia cavidad (forjado sanitario).
- Llenado de zonas intermedias de cavidades

- Rellenado e inyección de las zonas superiores de la cavidad
El relleno se realiza con arcilla y posteriores inyecciones para tensar el relleno en las zonas superiores de la cavidad o hueco.

Las fases anteriores pueden repetirse varias veces en función de la geometría de la cavidad o modificarse según las necesidades de Uretek.
EQUIPAMIENTO PARA LA INTERVENCIÓN
Nuestro personal utilizará los siguientes equipos:
- Camión – taller y/o contenedor con todo el equipamiento necesario para las inyecciones:
- Bombas electrohidráulicas para inyección de resina de dos componentes.
- 70 - 85 metros lineales de tuberías para transportar la resina desde el camión hasta las zonas de inyección.
- Pistola de inyección de dos componentes equipada con sonda de temperatura para un control óptimo de la reacción química.
- Bombas neumáticas de alimentación.
- Compresor.
- Generador EE.
- Taladros manuales para perforar.
- Taladros a rotopercusión para la instalación de tubos de inyección.
- Extractores hidráulicos y manuales.
- Utillaje diverso.
MATERIALES NECESARIOS
Los principales consumibles utilizados durante las operaciones son:
- Tubos de inyección con un diámetro de Ø 12 mm y longitud variable;
- La resina expansiva tipo Geoplus® Uretek debe contar con las siguientes características técnicas certificadas por laboratorios cualificados y reconocidos:
- Tiempos de polimerización entre 5 s (inicio de la reacción) y 40 s (final de la reacción).
- Presión máxima de expansión en condiciones edométricas de hasta 10,0 MPa.
- Resistencia a la compresión vertical con expansión lateral libre entre 0,10 MPa y 6,00 MPa en el rango de peso de volumen de 0,40 kN/m³ a 3,50 kN/m³.
- Módulo de elasticidad inicial determinado para una deformación axial del 1% entre 10,0 MPa y 85,0 MPa dentro de los rangos de peso volumétrico entre 0,50 kN/m³ y 3,30 kN/m³.
- Resistencia a la tracción axial entre 0,50 MPa y 8,00 MPa en el rango de peso de volumen de 0,50 kN/m³ a 5,00 kN/m³.
- Módulo resistente entre 20 MPa y 70 MPa en el rango de peso de volumen entre 1,0 kN/m³ y 2,1 kN/m³.
- Deformación vertical resultante de la aplicación a largo plazo de una carga de compresión con expansión lateral libre entre 0,3% y 2,0% en el rango de solicitaciones de entre 0,15 MPa a 1,10 MPa.
- La resistencia máxima a la tracción por flexión entre 0,10 kN y 1,20 kN dentro de los rangos de peso volumétrico entre 1,0 kN/m³ y 5,0 kN/m³.
- Compatibilidad ambiental de acuerdo con los límites establecidos.
- Estabilidad dimensional y de rendimiento a largo plazo (período de referencia 50 años).
- Leca cuenta con la certificación ANAB-ICEA para la construcción ecológica y el marcado CE de acuerdo con:
- UNE EN 13055 "Áridos ligeros".
- UNE EN 14063-1 "Aislamiento térmico para edificios - Productos de áridos ligeros de arcilla expandida realizados in situ - Parte 1: Especificaciones para productos a granel antes de la instalación".








