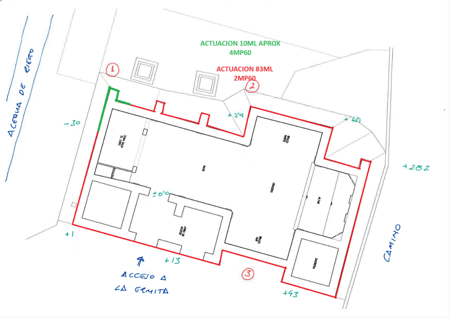
La intervención de consolidación se llevó a cabo inyectando la resina Uretek Geoplus en el terreno de apoyo de los muros de carga con el fin de mejorar los parámetros de resistencia. La zona intervenida ha sido de 93 ml, correspondiente al perímetro total de la ermita.
EL PROBLEMA
Debido al asentamiento que presentaba la estructura, determinado a través de una medición topográfica de alta definición con escáner laser facilitada, llegando a ser de 60cm respecto de la horizontal en el punto más desfavorable. Fue necesario realizar una intervención para consolidar el terreno de cimentación bajo los muros de carga perimetrales de la ermita.
Por qué se eligió la solución de Uretek:
- Rapidez: cuidadosa planificación y programación de los tiempos de ejecución que permitieron completar la obra en poco tiempo.
- Precios competitivos.
- Intervención mínimamente invasiva: la intervención propuesta por Uretek no requirió excavaciones ni trabajos de albañilería, sin ensuciar el área, ni produciendo residuos;
- Monitorización con láser de alta precisión: tanto durante como después de la intervención, las actividades estuvieron sujetas a control en tiempo real mediante tecnología láser de última generación y personal altamente cualificado;
- Aplicación de la exclusiva tecnología Uretek Deep Injections®, que gracias a la inyección de la resina expansiva Uretek Geoplus® a alta presión de hinchamiento, compacta el terreno y estabiliza las estructuras.
- Respeto al medio ambiente: la mezcla de las resinas Uretek® genera un producto final inerte, que no libera eluatos al suelo ni a los acuíferos presentes.
LA SOLUCIÓN
Para solucionar el problema se optó por una tecnología cuyas características son la poca invasividad y la rapidez de ejecución: Uretek Deep Injections® con inyecciones de resina expansiva Uretek Geoplus®.
El resultado de la intervención se ha verificado a través de monitorización láser durante las inyecciones, así como con la ejecución de ensayos de penetración dinámica, tanto antes como después de la intervención (evidencia de la mejora de la capacidad portante del terreno tratado).
Fueron tratados un total de 93ml de los muros de carga de la ermita durante la intervención.
EL PROYECTO EN DETALLE

La ermita, construida en el siglo XVII, presenta una planta de cruz latina compuesta por una sola nave.
La cimentación de la ermita se resuelve mediante muros de carga de composición variable, a base de mampostería de piedra y fábricas de ladrillo, con un espesor de 80cm. Tras los primeros ensayos realizados se detectó el apoyo de la cimentación en el terreno a una cota de 1,50-1,70m.
El sustrato de la zona de estudio está compuesto por una sucesión de tramos yesíferos y facies arcillosas de espesor variable.
La ermita presentaba patologías de fisuración principalmente localizadas en la orientación norte y oeste.
El tratamiento consistió en la mejora del terreno en una profundidad variable entre 2 y 4 metros bajo la cimentación de la ermita compuesta por muros de carga y realizada en todo su perímetro. Dimensionado, determinado y consensuado con la empresa geotécnica elaboradora del estudio geotécnico.









