La intervención se llevó a cabo rellenando en primer lugar el forjado sanitario de arcilla expandida de granulometría controlada para en una segunda fase inyectar resina Uretek Geoplus con el fin de rellenar los huecos y compactar el relleno previo hasta poner en carga el forjado. Previamente a todo se habían reparado por métodos tradicionales las vigas y viguetas. El forjado tiene una superficie de 1.000 m2, con un volumen bajo el mismo de 850 m3.
EL PROBLEMA
La falta de ventilación unido a la humedad presente en el forjado sanitario provocó la oxidación de las armaduras de la estructura, con pérdida de sección tanto de acero como de hormigón, poniendo en peligro de colapso el forjado. Se plantearon previamente 2 soluciones: una primera que excavaría dentro del forjado para aumentar el espacio disponible y hacer una reparación tradicional que no fue viable debido a la dureza del terreno y una segunda que consistía en desalojar el instituto un año y demoler el forjado sanitario para hacerlo de nuevo, que no se llegó a ejecutar al plantearse la tecnología Uretek Cavity Filling.
Por qué se eligió la solución de Uretek:
- Rapidez: cuidadosa planificación y programación de los tiempos de ejecución que permitieron completar la obra en poco tiempo.
- Precios competitivos.
- Intervención mínimamente invasiva: la intervención propuesta por Uretek no requirió excavaciones ni trabajos de albañilería, sin ensuciar el área, ni produciendo residuos;
- Monitorización con láser de alta precisión: tanto durante como después de la intervención, las actividades estuvieron sujetas a control en tiempo real mediante tecnología láser de última generación y personal altamente cualificado;
- Aplicación de las exclusivas tecnologías Uretek Cavity Filling® que, gracias a la inyección de la resina expansiva Uretek Geoplus® a alta presión de hinchamiento, compacta el relleno de arcilla expandida y estabiliza las estructuras.
- Respeto al medio ambiente: la mezcla de las resinas Uretek® genera un producto final inerte, que no libera eluatos al suelo ni a los acuíferos presentes.
LA SOLUCIÓN
Para solucionar el problema se optó por una tecnología cuyas características son la poca invasividad y la rapidez de ejecución: Uretek Cavity FIlling® con inyecciones de resina expansiva Uretek Geoplus®.
La intervención se llevó a cabo en un tiempo inferior a 2 meses de modo que no ha sido necesario desalojar el instituto, ya que se ha llevado a cabo en época estival. El resultado de la intervención se ha verificado a través de monitorización láser durante las inyecciones, verificando de dicho modo la puesta en carga del forjado.
Fueron tratados un total de 1.000 m2 de forjado rellenando bajo el mismo 850 m3 de cámara sanitaria.
EL PROYECTO EN DETALLE

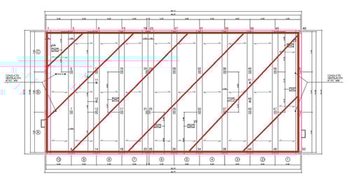
La edificación una estructura de hormigón armado de 1 altura, con cimentación por zapatas aisladas arriostradas y un forjado de viguetas y bovedillas de hormigón vibrado. Las vigas del forjado tienen 60cm de canto, por lo que la cámara sanitaria (de una altura aproximada de 1m) queda dividida en secciones separadas por dichas vigas, de modo que el espacio para acceder entre ellas es de 40 cm en vertical.
Para la primera fase de rellenado de la cámara sanitaria con arcilla expandida fue necesario la apertura de huecos en el forjado a través de los cuales se introducía un operario con la manguera de bombeo de arcilla expandida. Desde cada apertura se rellenaba la sección a la que se accede así como la mitad de las secciones laterales. Previamente se había procedido al saneo y reparación estructural de las vigas, viguetas y pilares.
Una vez rellenada la cámara sanitaria en un volumen aproximado del 95% se procedió al tapado de las aperturas y a la realización de perforaciones de 18 mm de diámetro en una malla de 1,2x1,2m, en las cuales se introdujeron las vainas de inyección de la resina.
La resina se inyecta hasta que se verifica el inicio de levantamiento del forjado mediante instrumentación láser de alta precisión (0,5mm), lo que indica que el forjado ha entrado en carga.
Cortadas las vainas de inyección, se procede al tapado de las perforaciones con distintos materiales que se asemejan a la solería o pavimento de cada estancia.








